WORKS
DARK HOUSE
DARK HOUSE
「暗さを設計する」
東京都都内某所で計画した戸建て住宅の計画。
暗さを主役として設計した。
闇が静けさをもたらし時のうつろいによる自然光の変化を感じさせ、闇でありながらも空間的余白を持つような独自の「闇の家」となるよう考えた。
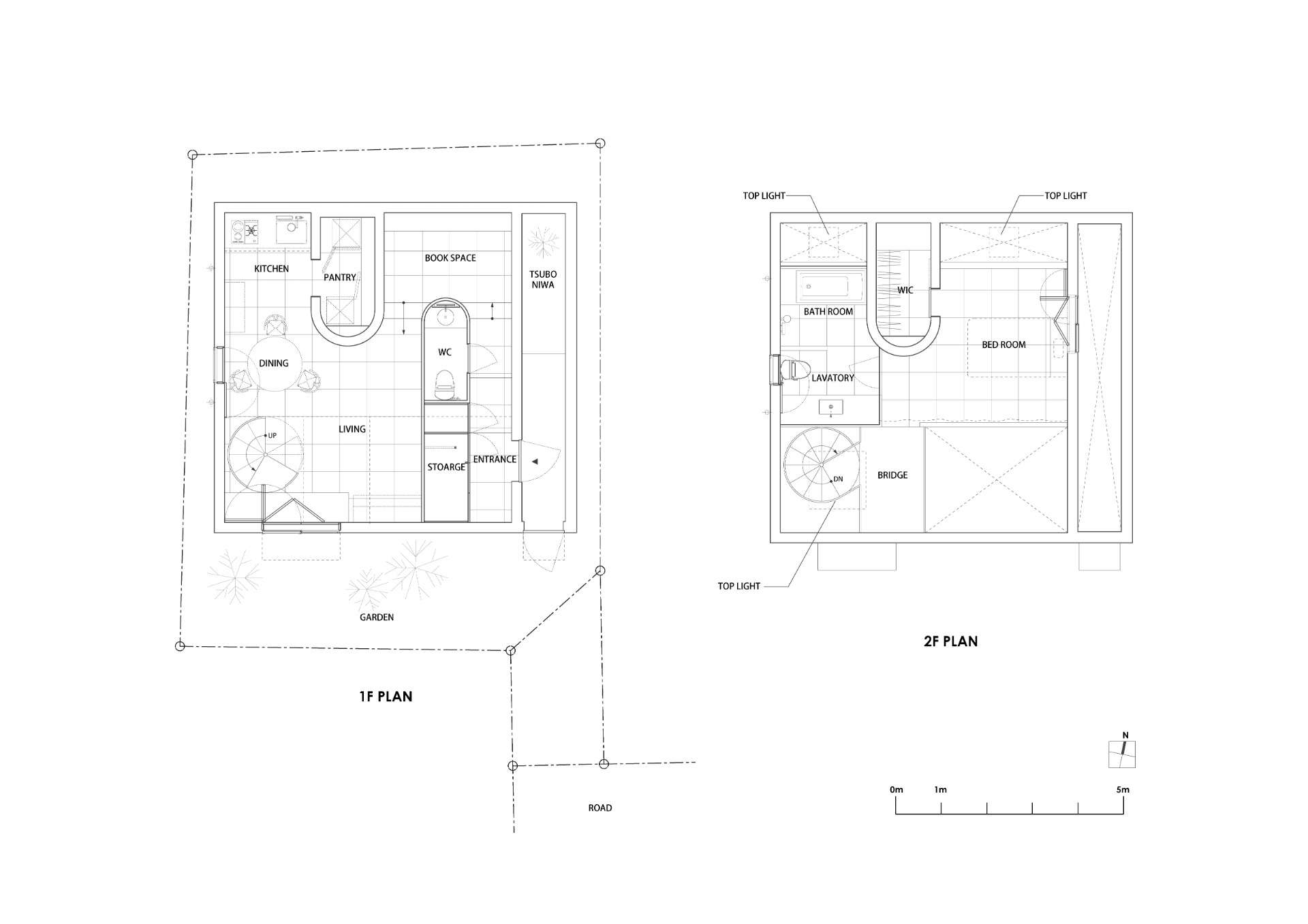
採光はトップライトのみ。天井の格子から光が落ちる。床レベルを半地下として光との距離をとり柔らかな光が入るよう調整した。
壁には通風用の窓を設けているが窓の内側に開閉式の内扉を設け、光を遮断できるようにして暗さを得ることができる。
だが、ただの闇ではない。
少量の光をコントロールし、静謐な空間をつくった。
暗さを削るのではなく、暗さを与えることで豊かな空間を考えていった計画である。
Photo / Toshiyuki Yano
Structure / FS Kouzou
Contractor / Watanabe Giken
" Designing Darkness"
This is a plan for a detached house planned in a certain location in Tokyo.
Darkness plays a leading role, and light exists there.
The darkness creates tranquility, and the faint light evokes the passage of time and seasons.
The house was designed to be a unique “House of Darkness” with spatial blank space in spite of the darkness.
The only lighting is from the top light.
The house is half-underground to ensure a distance from the light.
The windows have retractable doors on the inside to thoroughly block out light.
But it is not just darkness.
A small amount of light was controlled to create a tranquil space.
The plan was based on the idea of a rich space by giving rather than cutting off darkness.
※The photo is in full color, not monochrome.




























